Page suivante
Page précédente
Floirac (33270)

Appartement 3 pièce(s) 2 chambre(s) 60.13 m²

1
Ascenseur
1
286 541 €
Réf 183

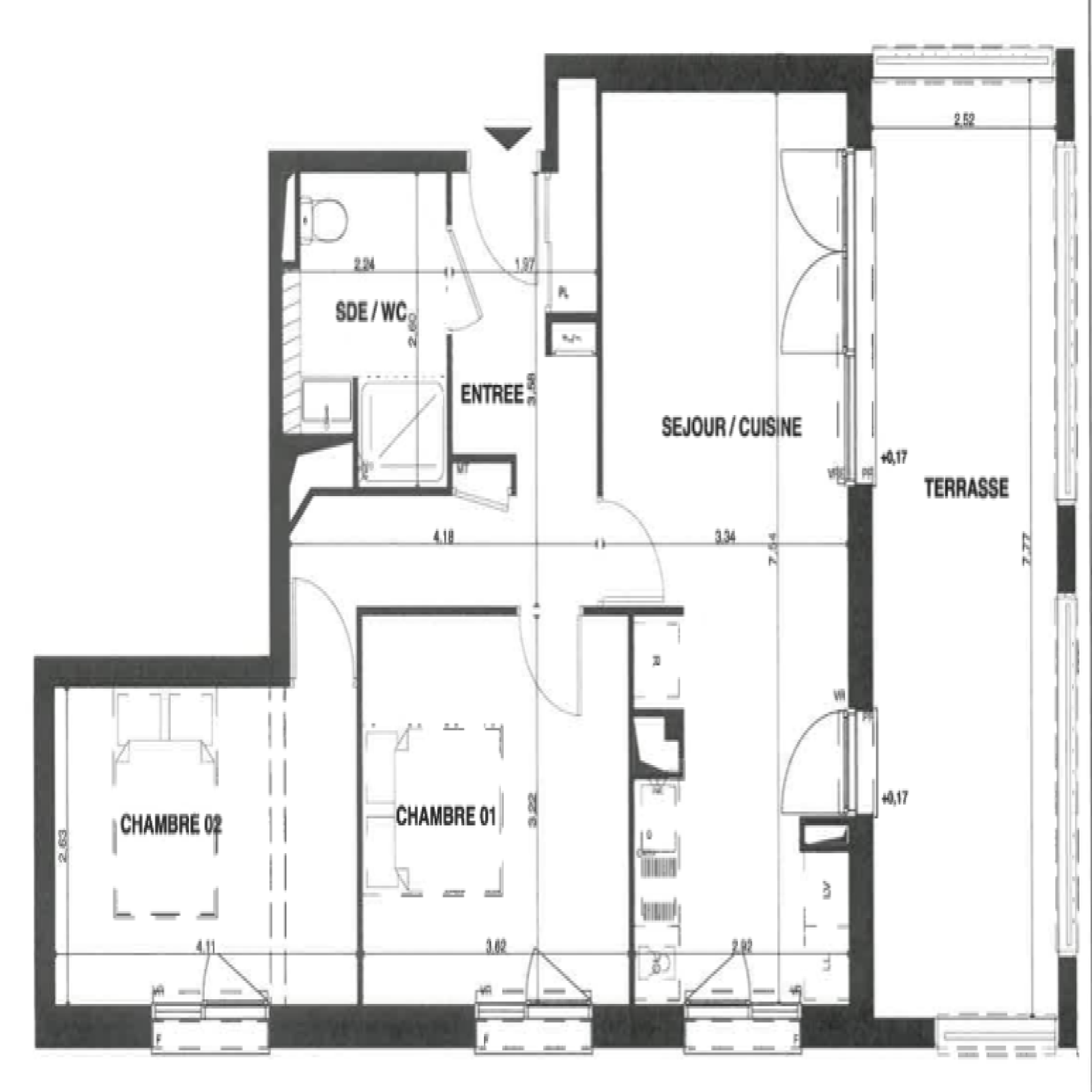
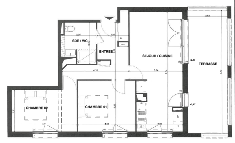
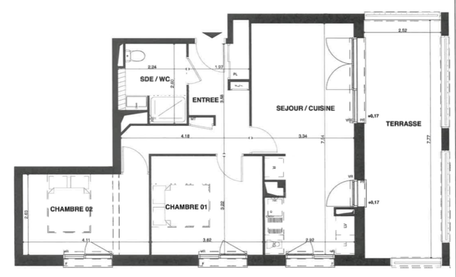
DRIVET IMMOBILIER vous propose à la vente un appartement de type T3 avec terrasse plein SUD situé au premier étage avec ascenseur d'une résidence sécurisée récente.

Cet appartement se compose d'une entrée avec placard, deux chambres avec dressing, une salle d'eau, un salon/séjour/cuisine donnant sur la terrasse sans vis-à-vis direct.

Appartement baigné de lumière, prêt à être décoré.

Une place de parking couverte est disponible.

À deux pas du stade Jean-Raymond GUYON et du parc des étangs. Proche des transports en commun et du centre de Floirac.

À visiter sans tarder !

Bilan énergétique

Diagnostics énergetiques
Consommation énergétique
A B C D E F G
Emission de gaz à effet de serre
A B C D E F G
DPE en cours
A propos de ce bien Caractéristiques de ce bien
  • Surface 60,13 m²
  • carrez 60,13 m²
  • séjour 23,13 m²
  • 2 chambre(s)
  • 1 salle(s) d'eau
  • construit en 2020
  • Chauffage collectif : radiateur (géothermie)
  • exposition Sud-Est
  • 1er étage
  • 5 étage(s)
  • ascenseur
  • terrasse
  • visiophone
  • interphone
  • accès handicapé

Info copro

Copropriété
  • Copropriété Oui
  • Lot n° 106

Financier

Informations financières
Prix de vente honoraires TTC inclus 286 541 €
Prix net vendeur 272 541 €
Prix de vente honoraires TTC exclus 272 541 €
Honoraires TTC à la charge acquéreur 5,14 %

Simulation

Calcul des mensualités
* Champs obligatoires
jeanne segonds Négociatrice